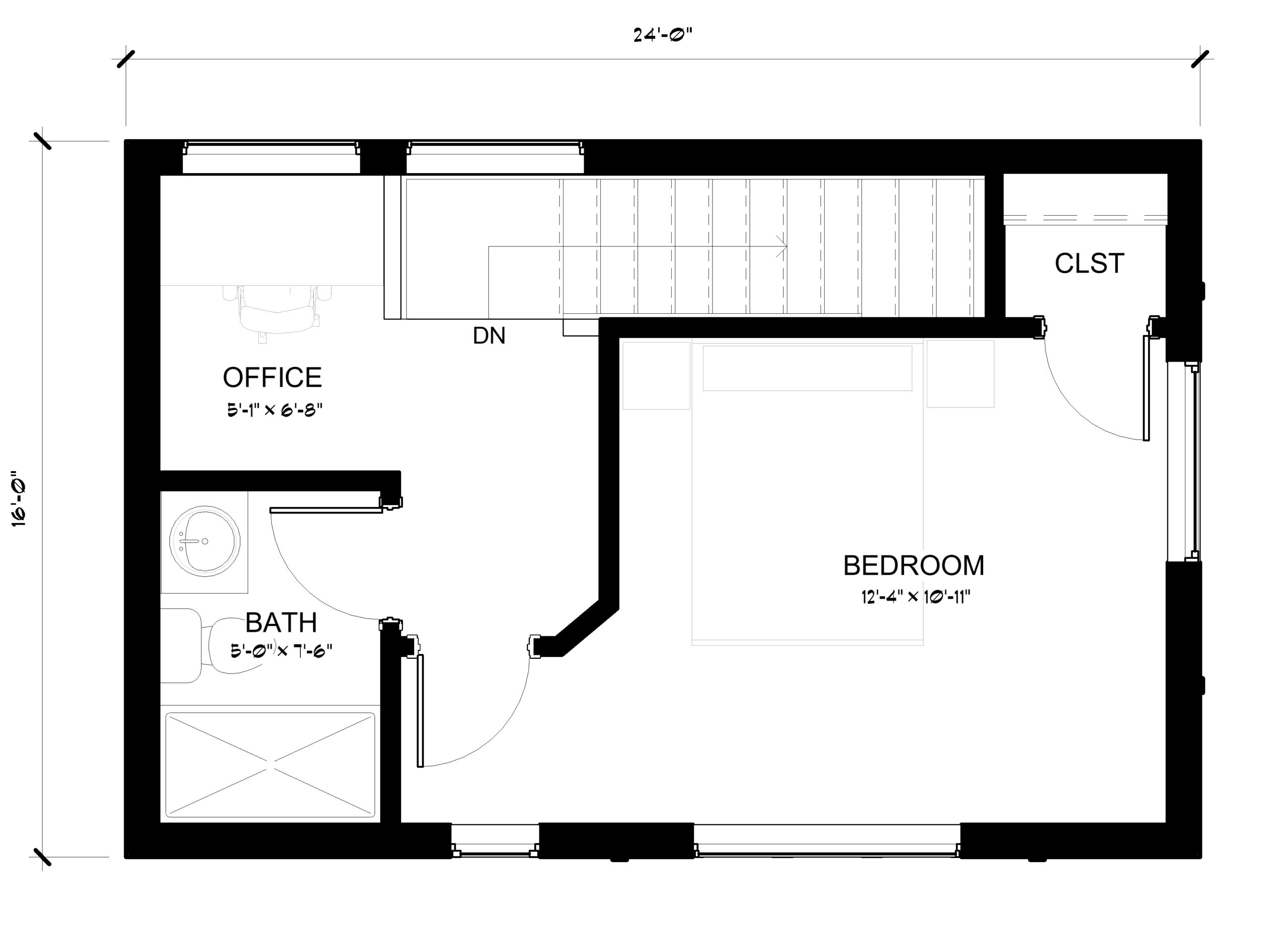
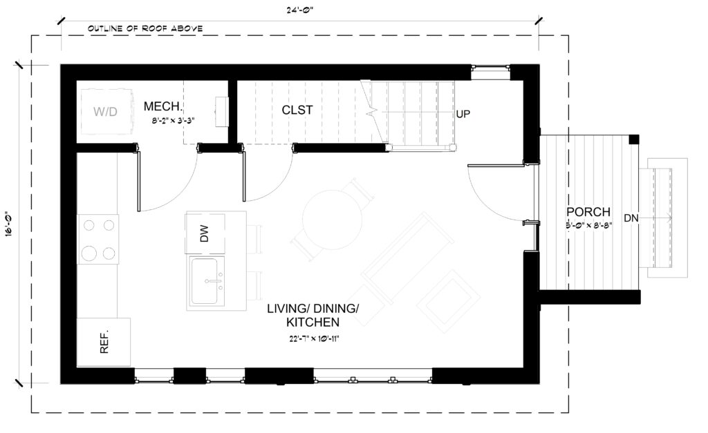
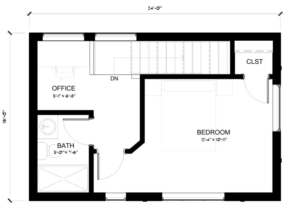
Two-Storey One Bedroom Homes